Central Kitchen Graz

show kitchen and roof garden

A simple three-story building extends along Herrgottwiesgasse, forming another element within the streetscape. On the ground floor, the volume expands eastward into an almost square base. Facing west, social and office spaces on the upper floor, are connected to a spacious green garden area. The scale and proportions of the existing buildings in the immediate vicinity are reflected in the design. The new building integrates discreetly into the existing urban structure.

Garden = Climate Grove x2

The garden on the upper floor nearly doubles the area of the climate grove, returning valuable green space and tree plantings to the surroundings. A nature-inspired planting concept, combined with the possibility of vegetable cultivation and versatile furnishings, allows for a diverse range of everyday uses, as well as celebrations, sports activities, relaxation, and more. To further enhance the green space factor, additional ground-connected facade greening is planned.

The garden creates a spatial extension of the office and social spaces into the outdoor area and invites diverse uses in a natural environment. The intensive greenery and tree planting in troughs serve as natural cooling and retention for rainwater.

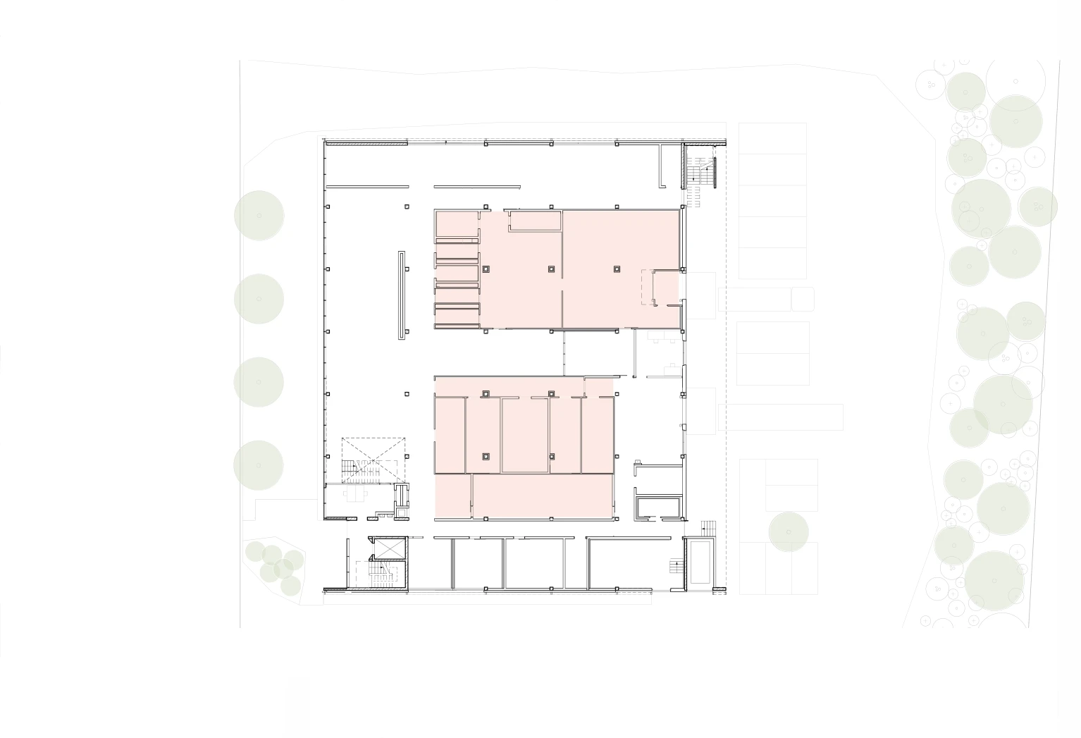
Circulation and Show Kitchen

The ground floor is optimized for maximum functionality of the kitchen workflows. Goods are delivered from the east and fed into the circulation shown on the floor plan. On the opposite side, the meal preparation area is showcased as a "show kitchen" with large windows facing Herrgottwiesgasse. Furthermore, hermetic building opens up to the multifunctional garden space on the upper floor through floor-to-ceiling glazing.

Facade Concept / Materiality

The building's primary structure is designed as an adaptable concrete framework. The load-bearing components consist of reinforced concrete columns and reinforced concrete slabs, forming a solid, durable, and versatile structure. The facade and interior design are designed as lightweight constructions, allowing for easy adaptation to changing uses. Materials are used according to their respective performance capabilities. Dismantling, cradle-to-cradle, and recycling play a key role. Furthermore, reuse or upcycling of used materials is also planned, e.g., roof panels, parquet flooring, reclaimed wood in the interior, etc.

Location

Graz / Styria / Austria

Building type

Public building

Project type

Permit project

Project year

2024

Gross building area

3505

Client

Team

Monika Raczynska-Piller
Ekaterina Shorina
Uranbayar Basbayar
Anna Lamprecht
Robert Lamprecht

© Sushi Dev 2024