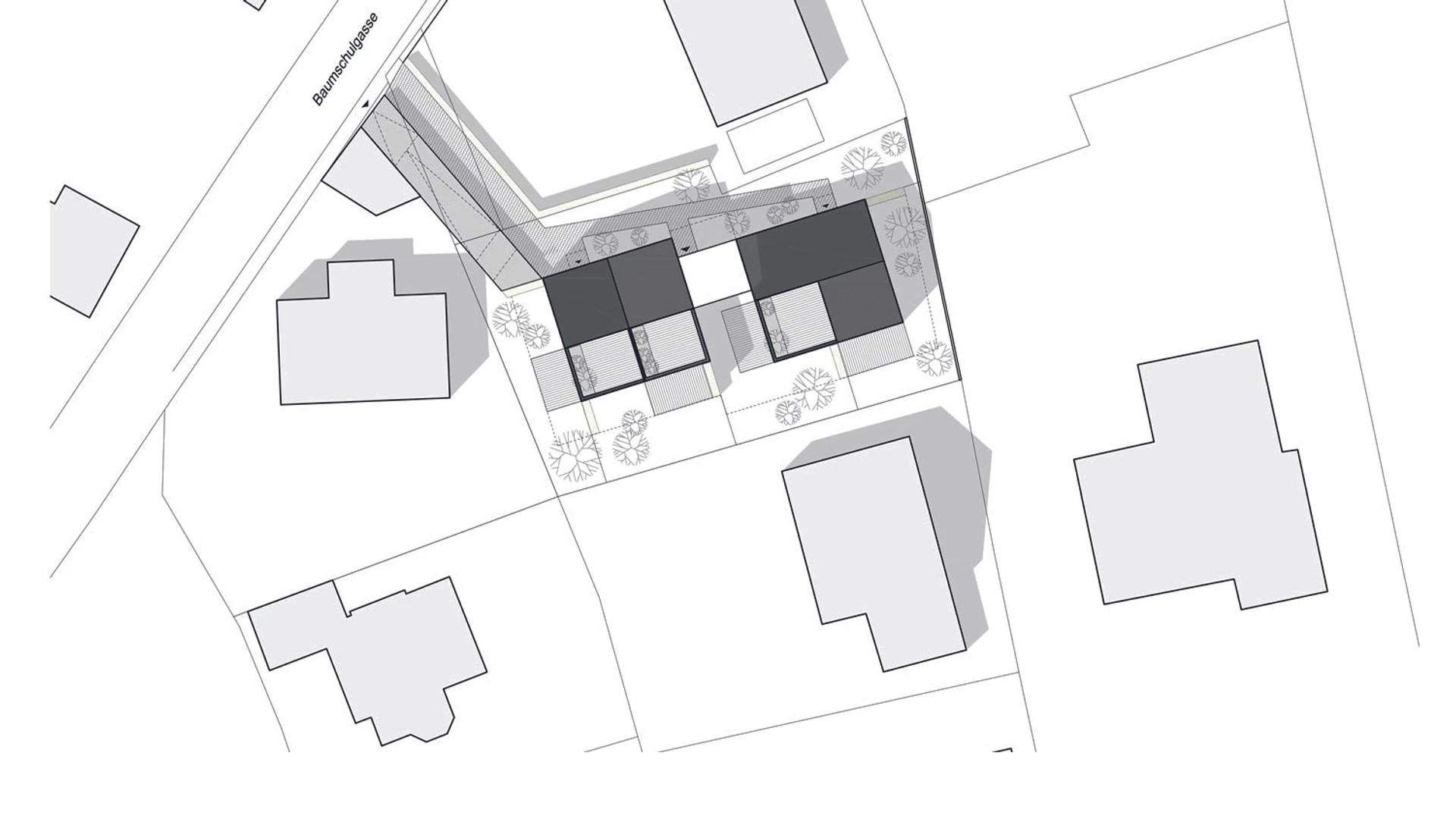
Baumschulgasse

symfonia dwóch willi tarasowych

Często zadajemy sobie pytanie: Jak powinno wyglądać współczesne budownictwo mieszkaniowe? Wille na Baumschulgasse oferują odpowiedź, zakorzenioną zarówno w lokalnej tożsamości, jak i kontekście historycznym. Nazwa Baumschulgasse („ulica szkółki drzew”) znajduje odzwierciedlenie w koncepcji architektonicznej, łącząc tradycyjną typologię willi z naturalnymi elementami, takimi jak ogrody i tarasy, w nową, spójną całość.
Tarasy, postrzegane jako przedłużenie przestrzeni życiowej, stają się podstawowym elementem tego zielonego sposobu życia.

Okolicę charakteryzują większe domy jednorodzinne z przestronnymi ogrodami, jednak miejscowy plan zagospodarowania przewiduje możliwość większej gęstości zabudowy w przyszłości. W tym kontekście naszym celem było jak najharmonijniejsze wkomponowanie nowej zabudowy w istniejące otoczenie.

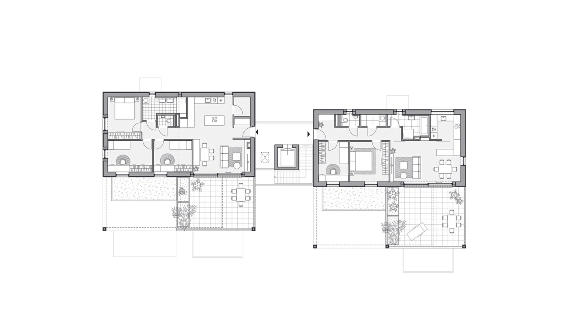
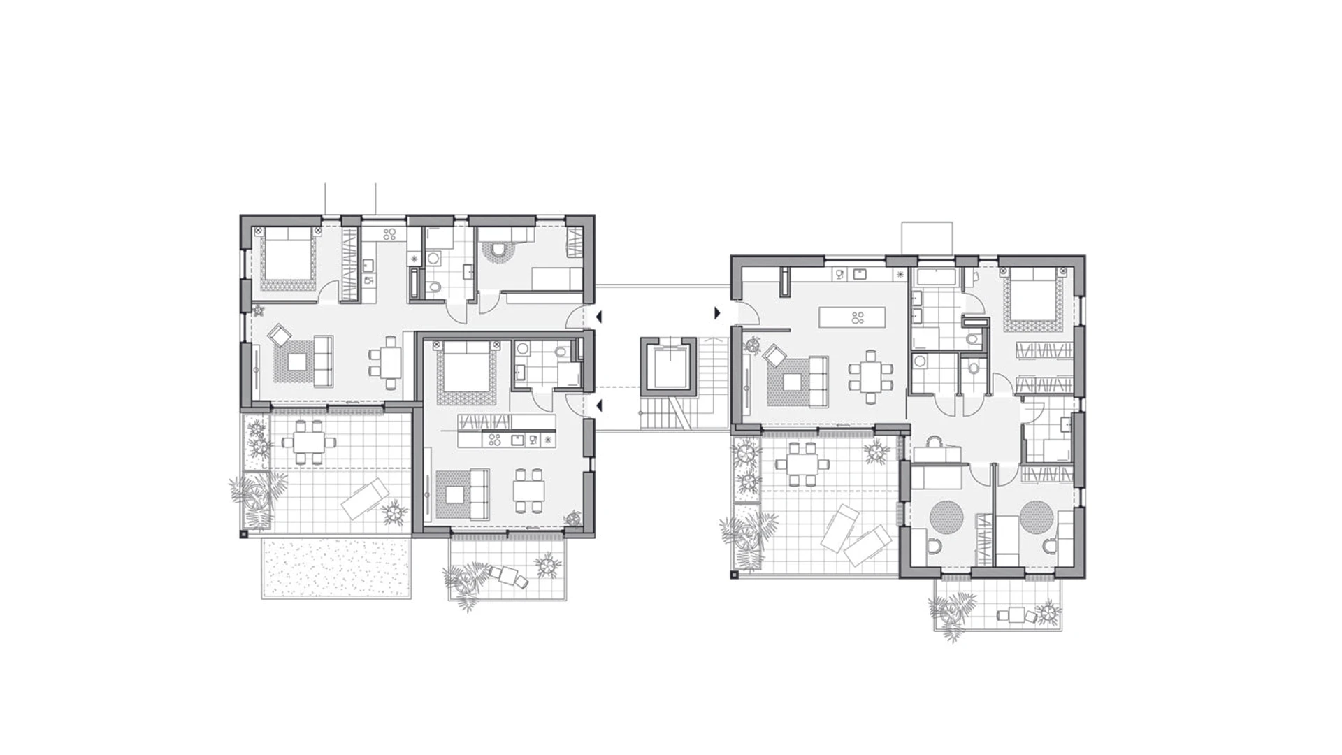
Maksymalna dopuszczalna kubatura została podzielona na dwa budynki o zbliżonych rozmiarach, rozdzielone otwartą klatką schodową. Dwuspadowe dachy o różnej orientacji podkreślają indywidualny charakter każdego z obiektów.
Od strony południowej bryły budynków zostały cofnięte na każdej kondygnacji, tworząc przestronne, osłonięte tarasy przynależne do każdego mieszkania – również tych na wyższych piętrach. Tarasy te zostały wzbogacone o donice, zadaszenia oraz stalową ramę, która porządkuje przestrzenie zewnętrzne i na nowo rysuje kontury pierwotnych brył budynków.

Lokalizacja

Graz / Styria / Austria

Typ budynku

Mieszkaniowy

Typ projektu

Zrealizowany

Klient

Team

Anna Lamprecht
Robert Lamprecht

© Sushi Dev 2024